- 6/5/2018. 30th anniversary Service



30th Anniversary



The following is a record of the building of the Church and Manse.
1996 10 years on 13 Kemp St



1988 Manse opening & dedication Prs Nagel & Scholz 16-10-1988
1988 Manse Building 13 Kemp St


1989 Pr K Nagel Installation of time capsul & contents 13 Kemp St 26-11-1989

1988 Adult Confirmation Rosemary Conron & Mandy Meakin 20-11-1988

1988 LLL Article annual report book

1986 Tamra Munchenberry 3-8-1968

1986 R Jericho Liturgist Foundatio Service 3-8-1986

1986 B Heuttner 3-8-1986

1988 Dedication New Worship Centre Pr K Nagel

1986 Pr K Nagel and Bob Rayward receiving cheque

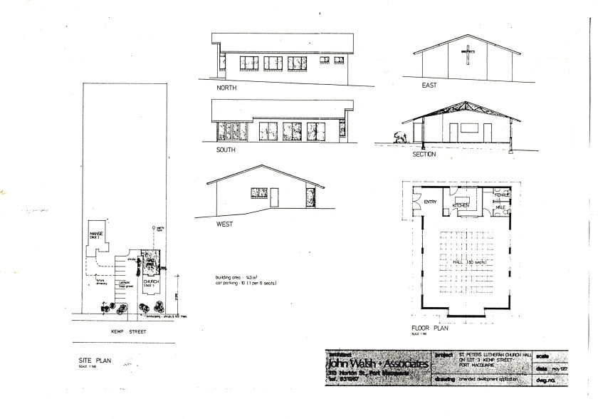
1987 Church under construction 13 Kemp St

1987 Brickworks in progress 13 Kemp St Oct Nov 1987


1987 Newspaper Artical 28-10-1987


1987 Foundations Church 13 Kemp St

1987 Excavating foundations for church 13 Kemp St Oct – Nov 1987


1986 Vacant block Lot 3 Kemp St
1986 Church Building Committee report

